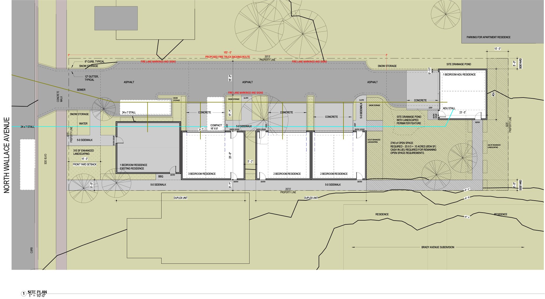
Architectural Master Site Planning

community

project summary:

Bringing Architecture into the conversation earlier results in a more refined master site planning.

details:

Location: Montana

Type: Architectural Site Planning
Program: New Construction

Design Team: Cole Robertson Principal Architect

Year: 2016-Present
Status: Various
Size: 1-10 Acres

Previous
Previous

West Peach Condos

Next
Next

Sacajawea Cottages